'Kirkland' c.1886 Italianate Grandeur, Expansive Grounds & Incredible Views
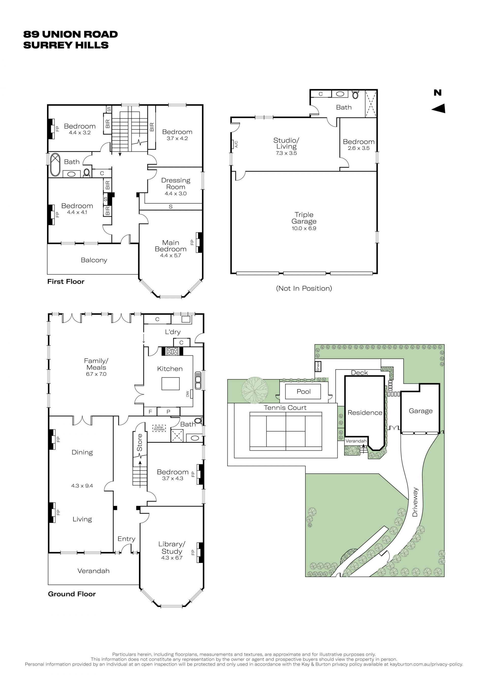
Rising on a ridge to command spectacular uninterrupted views directly over Surrey Gardens to the city skyline, 'Kirkland' is a landmark Italianate mansion built in 1886 that imperiously stands on a 3092 sq. metre allotment (approx.) amidst expansive garden grounds including tennis court and swimming pool. Widely regarded as 'the white house on the hill', this stately residence of nine principal rooms presents a remarkably rare family opening in a prestigious Surrey Hills position.
Winding through hedge and garden to a three-car remote-control garage, the imposing sight of 'Kirkland' is clearly the area's most impressive and, secluded at the quiet end of Union Road, the air of grandeur and distinction is telling. An ornate interior with arched hallways, towering ceilings and marble gas fireplaces evokes a timeless excellence that's perfectly functional for the lifestyles of today enhanced by ducted heating/cooling, security alarm and sublime north-oriented alfresco entertaining.
Ground-floor flexibility underpins the majesty of a substantial executive study/library and a sumptuous drawing room with the layout flowing to a versatile lounge room and a bathroom before a spacious rear family zone. Here, a separate gourmet kitchen with Ilve/Miele appliances and a full-size laundry adjoin an open-plan living and dining room where French doors lead to a surrounding deck, bluestone paving and garden.
Magnificent views from the city across to the Macedon Ranges are a striking feature of the upstairs domain that offers five sizable bedrooms and an elegant modern bathroom with a clawfoot bath. Additionally, there is a subfloor space for wine cellaring, three-door garage with lounge/studio, bedroom and bathroom (ideal for extended family or au pair) as well as a large solar-heated in-ground pool and N/S floodlit Mod-Grass tennis court.
'Kirkland' with its extensive frontage, vast garden setting and illustrious standing presents a once in a lifetime opportunity for a family to experience the lavish refinement and undeniable privilege of the area's most outstanding property close to primary and private schools, Surrey Hills Village cafes and shopping, train station, parkland walking trails, the Maling Road heritage precinct and Box Hill Central.
Winding through hedge and garden to a three-car remote-control garage, the imposing sight of 'Kirkland' is clearly the area's most impressive and, secluded at the quiet end of Union Road, the air of grandeur and distinction is telling. An ornate interior with arched hallways, towering ceilings and marble gas fireplaces evokes a timeless excellence that's perfectly functional for the lifestyles of today enhanced by ducted heating/cooling, security alarm and sublime north-oriented alfresco entertaining.
Ground-floor flexibility underpins the majesty of a substantial executive study/library and a sumptuous drawing room with the layout flowing to a versatile lounge room and a bathroom before a spacious rear family zone. Here, a separate gourmet kitchen with Ilve/Miele appliances and a full-size laundry adjoin an open-plan living and dining room where French doors lead to a surrounding deck, bluestone paving and garden.
Magnificent views from the city across to the Macedon Ranges are a striking feature of the upstairs domain that offers five sizable bedrooms and an elegant modern bathroom with a clawfoot bath. Additionally, there is a subfloor space for wine cellaring, three-door garage with lounge/studio, bedroom and bathroom (ideal for extended family or au pair) as well as a large solar-heated in-ground pool and N/S floodlit Mod-Grass tennis court.
'Kirkland' with its extensive frontage, vast garden setting and illustrious standing presents a once in a lifetime opportunity for a family to experience the lavish refinement and undeniable privilege of the area's most outstanding property close to primary and private schools, Surrey Hills Village cafes and shopping, train station, parkland walking trails, the Maling Road heritage precinct and Box Hill Central.
Agents
Assistant Sales Consultant, Licensed Estate Agent
Enquire Now
Please fill out a few details below so we can assist with your enquiry about 89 Union Road. We will be in touch as soon as possible.
