Auction brought forward to Thursday 20 February 2025
This classic double-fronted Victorian enhanced by layers of landscaped greenery offers generous four bedroom, two bathroom accommodation with stunning swimming pool, a versatile studio and secure garaging. Impeccably enhanced and expanded with extra-high ceilings throughout, this broad and spacious single-level Victorian is an indoor-outdoor dream for all seasons with Tooronga Road’s cafes and shops that are loved by locals located just around the corner.
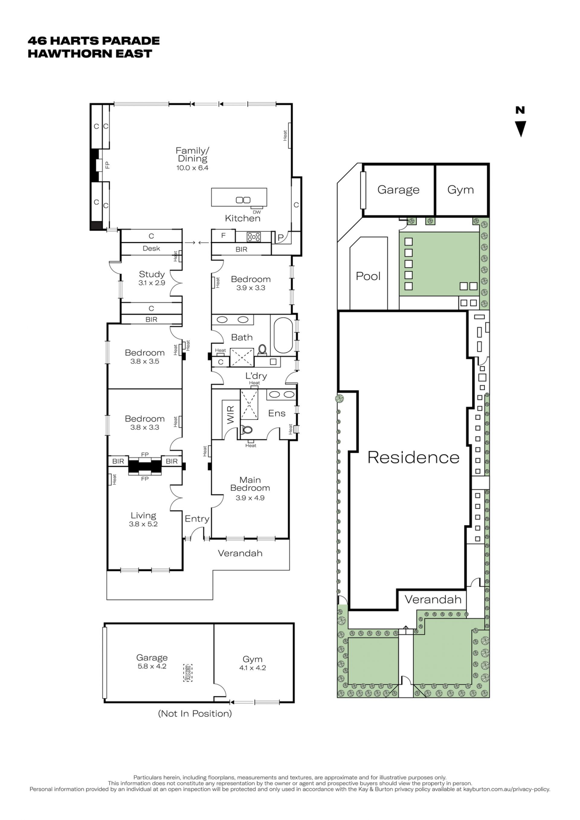
An unusually wide double-arched hallway with polished floorboards leads to a north-facing sitting room while situated opposite is a large and light main bedroom boasting a walk-in robe and a dual-vanity ensuite. Further are three additional bedrooms all with built-in robes and a fitted executive study along with an impressive family bathroom including a huge bath and a separate full-size laundry.
Overlooking a secure and secluded, architect-designed rear garden setting, an expansive family living and dining room highlighted by a HeatnGlo gas fireplace, customized wall storage and a picture window above the pool flows to an excellent gourmet kitchen featuring an island breakfast bench and walk-in pantry. Tall stacker doors provide a seamless connection to the garden-set, solar-heated MagnaPool and a versatile separate studio, office or gym.
Additional attributes include hydronic heating, split-system air-conditioner, speaker system, ceiling fans, open fireplaces and an easy-access remote-control garage with roof storage. This superbly presented home is a sublime family lifestyle sanctuary close to sought-after primary and private schools, parkland and walking trails, Monash freeway and the Camberwell Junction precinct with its restaurants, shopping, Sunday Market, Rivoli cinemas, trams and train station.
An unusually wide double-arched hallway with polished floorboards leads to a north-facing sitting room while situated opposite is a large and light main bedroom boasting a walk-in robe and a dual-vanity ensuite. Further are three additional bedrooms all with built-in robes and a fitted executive study along with an impressive family bathroom including a huge bath and a separate full-size laundry.
Overlooking a secure and secluded, architect-designed rear garden setting, an expansive family living and dining room highlighted by a HeatnGlo gas fireplace, customized wall storage and a picture window above the pool flows to an excellent gourmet kitchen featuring an island breakfast bench and walk-in pantry. Tall stacker doors provide a seamless connection to the garden-set, solar-heated MagnaPool and a versatile separate studio, office or gym.
Additional attributes include hydronic heating, split-system air-conditioner, speaker system, ceiling fans, open fireplaces and an easy-access remote-control garage with roof storage. This superbly presented home is a sublime family lifestyle sanctuary close to sought-after primary and private schools, parkland and walking trails, Monash freeway and the Camberwell Junction precinct with its restaurants, shopping, Sunday Market, Rivoli cinemas, trams and train station.
Agents
Enquire Now
Please fill out a few details below so we can assist with your enquiry about 46 Harts Parade. We will be in touch as soon as possible.
