"Victorian Charm in Prime Lifestyle Position" FULLY FURNISHED
Rare opportunity to lease this grandly proportioned fully furnished Victorian abode which is positioned on approximately 238 sqm in highly sought after Prahran precinct. Mere moments from trendy Greville Street's boutique shopping, cafes and fine dining, Prahran market and train station, The Alfred Hospital, all the attractions of Chapel Street as well as a choice of elite schools.
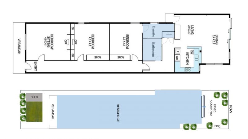
Welcomed by long arched hallway leading to open plan family and dining area flanked by bright windows and a contemporary kitchen with European appliances, opening to a charming enclosed courtyard where rear access exists via a laneway, huge main bedroom with built in robes and stunning ensuite bathroom with large walk in shower, spacious second bedroom and the addition of second living/study or possible third bedroom with choice is yours, large central bathroom, laundry facilities.
Features include:- high ceilings and period features, quality modern furnishings throughout, central heating and split system heating/cooling to the rear living area, storage shed to the front garden, permit parking available. Inspection will delight!
We specialise in fully furnished leasing please visit our website kayburton.com.au
**If this property is of interest to you, please ensure that you register your interest by clicking on the 'Get in touch' button, so that you are kept up to date with inspections, price changes and similar properties that may be suitable. We assure you that your details remain confidential and are only used for the purpose of securing you a property. https://kayburton.com.au/privacy-policy **
Welcomed by long arched hallway leading to open plan family and dining area flanked by bright windows and a contemporary kitchen with European appliances, opening to a charming enclosed courtyard where rear access exists via a laneway, huge main bedroom with built in robes and stunning ensuite bathroom with large walk in shower, spacious second bedroom and the addition of second living/study or possible third bedroom with choice is yours, large central bathroom, laundry facilities.
Features include:- high ceilings and period features, quality modern furnishings throughout, central heating and split system heating/cooling to the rear living area, storage shed to the front garden, permit parking available. Inspection will delight!
We specialise in fully furnished leasing please visit our website kayburton.com.au
**If this property is of interest to you, please ensure that you register your interest by clicking on the 'Get in touch' button, so that you are kept up to date with inspections, price changes and similar properties that may be suitable. We assure you that your details remain confidential and are only used for the purpose of securing you a property. https://kayburton.com.au/privacy-policy **
Agents
Enquire Now
Please fill out a few details below so we can assist with your enquiry about 71 Greville Street. We will be in touch as soon as possible.
