Hawthorn's Best Penthouse - Amazing City Views
*This property is offered partly furnished. Please note the furniture in the photos is not the partly furnished furniture offered.*
Rare and remarkable, this penthouse crowns the top floor of the prestigious Emblem development offering Expansive views to the north, east and west including spectacular uninterrupted panoramic city skyline views and the dramatic architecture of the Xavier and MLC chapels which are beautifully illuminated at night. The Emblem is considered the premium residential development in Hawthorn. This sophisticated penthouse has 2 secure basement car spaces plus a fully secure storage cage.
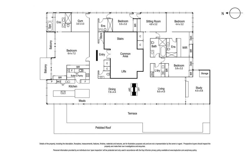
The glamorous interiors include 5 bedrooms, 4 bathrooms, and multiple living spaces. With striking clean architectural lines; banks of sliding glass doors and a fully automated louvred facade, this penthouse contains the full suite of designer finishes from oak flooring to the finest stone surfaces and bespoke lighting this interior is impeccably detailed and beautifully presented. Multi-zoned, the living spaces flow seamlessly along the western wing, framing the city skyline views through floor-to-ceiling glass. The entertainer's kitchen is finished in Armani Grigio marble, Miele appliances, and an integrated refrigerator, complete with a butler's pantry. The spectacular terrace leading off the living areas takes entertainment to new heights as the sun sets across the city.
The principal living and dining zones are enhanced by a well-appointed study, an informal living room, with views across Hawthorn and Kew to the east, and a gymnasium. The bedrooms are designed for pure indulgence. The extravagant master bedroom suite evokes a luxurious day spa experience with pivoting fabric screens, customized joinery, northern terraces, and a sumptuous elevated bath with 180-degree views. Three further fitted bedrooms feature their own private bathrooms. Expertly finished, the penthouse includes home automation, surround sound, automated external louvre solar control blinds, zoned heating and cooling, a feature gas fireplace, storage cages, and direct lift access to the private penthouse lobby.
In the heart of exclusive Hawthorn, fabulous fashion and fine food are all located only meters away on Glenferrie Road with immediate access to trams, trains, and the elite schools nearby including Xavier College, MLC, Trinity Grammar, Scotch College, and Carey Grammar all within walking distance or a short tram ride away.
**If this property is of interest to you, please ensure that you register your interest by clicking on the 'Get in touch' button, so that you are kept up to date with inspections, price changes and similar properties that may be suitable. We assure you that your details remain confidential and are only used for the purpose of securing you a property. https://kayburton.com.au/privacy-policy **
Rare and remarkable, this penthouse crowns the top floor of the prestigious Emblem development offering Expansive views to the north, east and west including spectacular uninterrupted panoramic city skyline views and the dramatic architecture of the Xavier and MLC chapels which are beautifully illuminated at night. The Emblem is considered the premium residential development in Hawthorn. This sophisticated penthouse has 2 secure basement car spaces plus a fully secure storage cage.
The glamorous interiors include 5 bedrooms, 4 bathrooms, and multiple living spaces. With striking clean architectural lines; banks of sliding glass doors and a fully automated louvred facade, this penthouse contains the full suite of designer finishes from oak flooring to the finest stone surfaces and bespoke lighting this interior is impeccably detailed and beautifully presented. Multi-zoned, the living spaces flow seamlessly along the western wing, framing the city skyline views through floor-to-ceiling glass. The entertainer's kitchen is finished in Armani Grigio marble, Miele appliances, and an integrated refrigerator, complete with a butler's pantry. The spectacular terrace leading off the living areas takes entertainment to new heights as the sun sets across the city.
The principal living and dining zones are enhanced by a well-appointed study, an informal living room, with views across Hawthorn and Kew to the east, and a gymnasium. The bedrooms are designed for pure indulgence. The extravagant master bedroom suite evokes a luxurious day spa experience with pivoting fabric screens, customized joinery, northern terraces, and a sumptuous elevated bath with 180-degree views. Three further fitted bedrooms feature their own private bathrooms. Expertly finished, the penthouse includes home automation, surround sound, automated external louvre solar control blinds, zoned heating and cooling, a feature gas fireplace, storage cages, and direct lift access to the private penthouse lobby.
In the heart of exclusive Hawthorn, fabulous fashion and fine food are all located only meters away on Glenferrie Road with immediate access to trams, trains, and the elite schools nearby including Xavier College, MLC, Trinity Grammar, Scotch College, and Carey Grammar all within walking distance or a short tram ride away.
**If this property is of interest to you, please ensure that you register your interest by clicking on the 'Get in touch' button, so that you are kept up to date with inspections, price changes and similar properties that may be suitable. We assure you that your details remain confidential and are only used for the purpose of securing you a property. https://kayburton.com.au/privacy-policy **
Agents
Enquire Now
Please fill out a few details below so we can assist with your enquiry about 603/862 Glenferrie Road. We will be in touch as soon as possible.
