Luxurious apartment in prestigious East Melbourne location
A prestigious and tightly-held location in this coveted pocket of East Melbourne and superb design by Bruce Henderson Architects make this apartment a lifestyle dream.
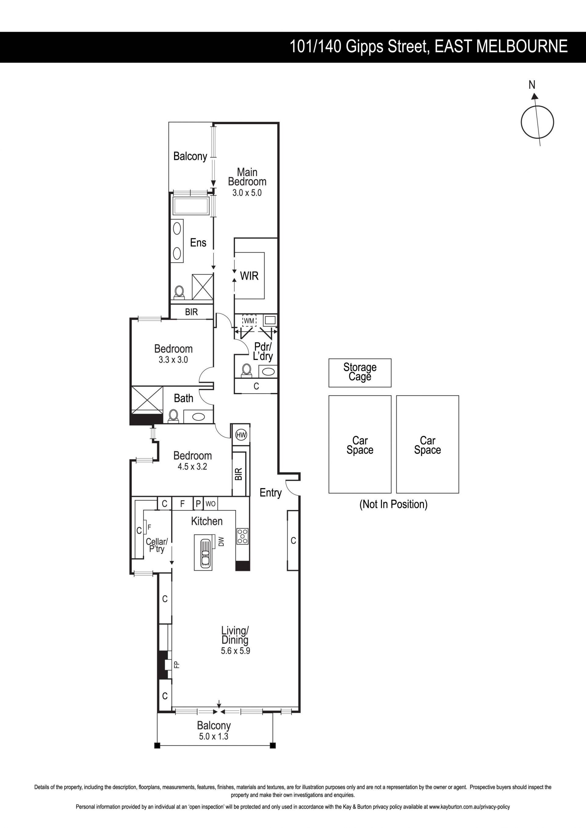
Perfect for everyday living and effortless entertaining, the three bedroom, two bathroom apartment in this boutique building of just 18 is exceptionally large. A wide balcony with leafy views and city glimpses, continues the living outside.
And when position counts nothing comes close to this apartment. It is just a short stroll through the majestic Fitzroy Gardens to the CBD, walking distance to the MCG, Tennis Centre and Sports Precinct and close to trams, trains, Richmond and South Yarra.
A generous entrance with abundant built-in storage leads to the oversized living and dining room. With its gas fireplace, marble finishes, abundant storage and the warmth of timber finishes, this room is perfect for entertaining on a grand or intimate scale. At one end, the living opens through glass sliders to the balcony, while at the other, the all marble/Miele kitchen is both elegant and practical.
Off the kitchen, the butler's pantry becomes a purpose built wine-room, with Vintec fridge and abundant storage, which can easily be converted back into a study.
Three bedrooms are zoned well away from the living, past the laundry and powder room. The expansive main suite includes a walk-in wardrobe/dressing room and a sublime ensuite with a bath, separate shower and heated towel rails. Two equally impressive bedrooms with built-in robes share the central bathroom.
Offering the best of everything from heating and cooling to plantation shutters, retractable flywire screens, electric blind, concealed lighting, security intercom, two basement car parks and storage, this apartment embodies the long-held prestige of an East Melbourne address.
Perfect for everyday living and effortless entertaining, the three bedroom, two bathroom apartment in this boutique building of just 18 is exceptionally large. A wide balcony with leafy views and city glimpses, continues the living outside.
And when position counts nothing comes close to this apartment. It is just a short stroll through the majestic Fitzroy Gardens to the CBD, walking distance to the MCG, Tennis Centre and Sports Precinct and close to trams, trains, Richmond and South Yarra.
A generous entrance with abundant built-in storage leads to the oversized living and dining room. With its gas fireplace, marble finishes, abundant storage and the warmth of timber finishes, this room is perfect for entertaining on a grand or intimate scale. At one end, the living opens through glass sliders to the balcony, while at the other, the all marble/Miele kitchen is both elegant and practical.
Off the kitchen, the butler's pantry becomes a purpose built wine-room, with Vintec fridge and abundant storage, which can easily be converted back into a study.
Three bedrooms are zoned well away from the living, past the laundry and powder room. The expansive main suite includes a walk-in wardrobe/dressing room and a sublime ensuite with a bath, separate shower and heated towel rails. Two equally impressive bedrooms with built-in robes share the central bathroom.
Offering the best of everything from heating and cooling to plantation shutters, retractable flywire screens, electric blind, concealed lighting, security intercom, two basement car parks and storage, this apartment embodies the long-held prestige of an East Melbourne address.
Agents
Enquire Now
Please fill out a few details below so we can assist with your enquiry about 101/140 Gipps Street. We will be in touch as soon as possible.
