Unprecedented inner-Melbourne landholding with prime commercial advantage
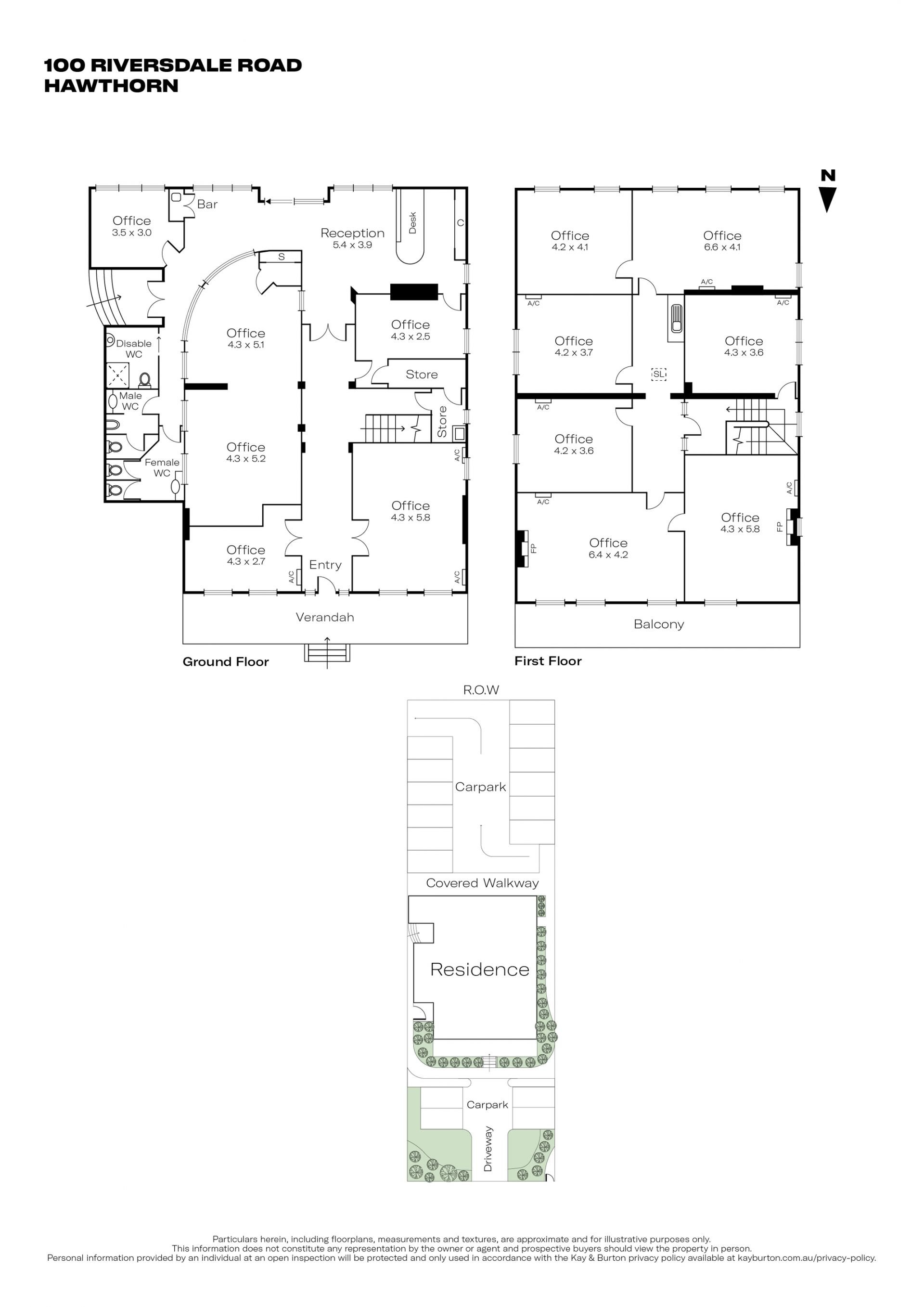
One of the most substantial and highly exposed corner holdings in Melbourne’s inner east, this extraordinary freehold spans approximately 3393 sqm across four titles on the pivotal junction of Riversdale Road and Glen Street, metres from Glenferrie Road. Zoned Residential Growth (RGZ1) and improved by three double-storey c. 1880 mansions adapted for commercial use, it presents a once-in-a-generation opportunity to secure scale and prominence in a tightly held precinct just six kilometres from the CBD. Extensively maintained and upgraded in recent years, including structural and services works, the site is immediately functional while offering clear pathways to repositioning or redevelopment (S.T.C.A).
A combined Gross Lettable Area of about 1269 square metres (approx.) is supported by on-site parking for 26 vehicles and exceptional dual street exposure. The existing layouts feature reception zones, meeting and training rooms, private offices and staff amenities, allowing a wide range of commercial or consulting operations to continue or evolve. Expansive frontages of approximately 61m to Riversdale Road, complemented by Glen Street vehicle access, deliver outstanding visibility to both vehicle and pedestrian traffic, underpinned by nearby tram routes and rail connections.
Positioned within Hawthorn’s established education and health corridor, moments from Swinburne University, Scotch College, Glenferrie Private Hospital and premier retail and dining, this is a rare large-scale inner-urban holding with immediate income potential and future development prospects, subject to approval, forming a truly significant inner-Melbourne acquisition.
A combined Gross Lettable Area of about 1269 square metres (approx.) is supported by on-site parking for 26 vehicles and exceptional dual street exposure. The existing layouts feature reception zones, meeting and training rooms, private offices and staff amenities, allowing a wide range of commercial or consulting operations to continue or evolve. Expansive frontages of approximately 61m to Riversdale Road, complemented by Glen Street vehicle access, deliver outstanding visibility to both vehicle and pedestrian traffic, underpinned by nearby tram routes and rail connections.
Positioned within Hawthorn’s established education and health corridor, moments from Swinburne University, Scotch College, Glenferrie Private Hospital and premier retail and dining, this is a rare large-scale inner-urban holding with immediate income potential and future development prospects, subject to approval, forming a truly significant inner-Melbourne acquisition.
Agents
Enquire Now
Please fill out a few details below so we can assist with your enquiry about 98-104 Riversdale Road. We will be in touch as soon as possible.
